9 Fotos und Anhänge ansehen
Gilg Consulting & ImmoServices GmbH
Tiberiusstr. 5a, 86199 Augsburg
Patrick Gilg

Geschäftsführer

Teilen

01_Frontansicht

03_Seitenansicht_Ulmer_Straße

04_Hinterhof

05_Beispiel Wohnraum

06_Beispiel Wohnraum

07_Beispiel_Gewerbeeinheit

08_Beispiel_1_Zi_Appartment

10_Hinterhof_II

09_Bad

1-Zimmer-Apartments in exponierter Lage mitten in Augsburg

Eckdaten

  • Art Apartment
  • Lage Augsburg
  • Kaufpreis 217.000,00
  • Kaufpreis pro m² 6.912,12
  • Hausgeld 43,25
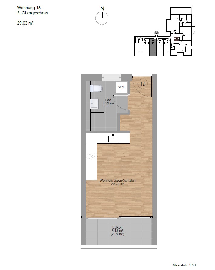
  • Wohnfläche ca. 29
  • Zimmer 1
  • Kellerfläche ca. 4
  • Baujahr 2023
  • Nutzfläche ca. 31
  • Etagenzahl 4
  • Etage 2
  • Alt-/Neubau Neubau
  • Heizungsart Fußbodenheizung
  • Einbauküche nein
  • Gäste-WC nein
  • Anzahl Balkone 1
  • Stellplatztyp Tiefgarage
  • Stellplatzanzahl 1
  • Garagenanzahl 34
  • Fahrzeit Hauptbahnhof 10 min
  • Fahrzeit nächste Autobahnauffahrt 10 min
  • Fahrzeit nächster Flughafen 70 min
  • Bodenbelag Parkett
  • Ausstattung des Bades Dusche
  • Zustand Erstbezug
  • Immobilien-ID 21
  • Provision 3,57 inkl. MwSt.

Immobilie

Nur wenige Schritte vom Ufer der Wertach entfernt wird in Augsburg diese Neubauwohnanlage mit vier kleinen Gewerbeeinheiten realisiert. Bei dem Objekt handelt es sich um einen weitgehend barrierefreien Massivbau. Dieser erfüllt sämtliche Anforderungen, an denen eine zeit- gemäße Immobilie bezüglich Wohnqualität und Effizienz heute gemessen wird. Das Haus erfüllt den BEG-KfW-55 EE Standard (GEG 2020).

In einer sehr gut angebunden Lage entstehen hier 30 neue Wohnungen und vier attraktive Gewerbeeinheiten in einem L-förmigen Gebäude- komplex, der sich über vier Stockwerke erstreckt. Die sandgraue Fassade harmoniert optisch sehr ansprechend mit der hellgrauen Dachkonstruktion sowie den anthrazitfarbenen Balkon- und Fensterelementen des Hauses. Die Wärmeversorgung für die Wohnanlage erfolgt über eine moderne Holz- Pelletheizung mit automatischem Fördersystem.

Lage

Die Neubauwohnanlage entsteht in der Ulmer Straße 24 und dem Hettenbachufer 1 im Augsburger Stadtbezirk Oberhausen-Süd. Dieser Bezirk Augsburgs zeichnet sich durch Beschaulichkeit und Vielfalt aus: Nördlich und südlich der Ulmer Straße lädt der Hettenbach zum Flanieren ein. Die Grünanlage Hettenbach Park ist ebenfalls mit wenigen Schritten erreicht. Die Wertach, Augsburgs zweitgrößten Fluss, trennen nur knapp 500 Meter vom Grundstück in der Ulmer Straße.

Das Nahversorgungsangebot rund um den geplanten Neubau lässt kaum Wünsche offen: Im Umkreis von einem Kilometer laden mehr als zwei Dutzend Restaurants, Cafés und Konditoreien zum Schlemmen und Genießen ein. Weniger als 10 Minuten vom Grundstück entfernt befinden sich zahlreiche Einkaufsmöglichkeiten, die vom Speziali- tätengeschäft über Supermärkte bis zur Drogerie alle erdenklichen Bereiche abdecken. Der nächste Baumarkt ist nur wenige Autominuten entfernt. Traditionelle Betriebe oder Fachgeschäfte sind in der direkten Umgebung zu finden, darunter Friseursalons, Leder- und Trachtenhändler oder Musikfachgeschäfte.

Zu den Arzt- oder Therapiepraxen, Apotheken oder Senioreneinrichtungen der Umgebung sind die Wege kurz. Die Nähe zu Schulen und Bildungseinrichtungen – von der Grundschule bis zur Universität – verdeutlicht die Attraktivität des Bezirks Oberhausen-Süd noch hinsichtlich seiner Familienfreundlichkeit. Kulturell wird in Form von Theater- und Musikbühnen, Kultur- und Kunstzentren sowie einem Märchenzelt für Kinder rund um die Ulmer Straße einiges geboten. Wer es sportlich mag, kann sich in einem der Fitnessstudios oder Sportvereine in der Nachbarschaft auspowern.

Weitere Wege werden ebenfalls problemlos gemeistert: Die Neubauimmobilie ist bestens an den öffentlichen Nahver- kehr angebunden. Die nächste Haltestelle des Augsburger Verkehrsverbundes liegt mit dem Bahnhof Augsburg Ober- hausen nur 4 Gehminuten entfernt. Von dort aus benötigt die Regionalbahn lediglich 2 Minuten Fahrzeit, um den Augsburger Hauptbahnhof und damit weitere Zugver- bindungen zu erreichen.

Ausstattung

In allen Wohneinheiten wird ein Fußbodenbelag aus Eichenparkett verlegt. Behagliche Wärme schafft die integrierte Fußbodenheizung, die per Thermostat im jeweiligen Raum individuell reguliert werden kann. Die Sanitärräume werden mit Feinsteinzeugfliesen an Wänden und auf den Bodenflächen ausgestattet. Alle Wohnungen umfassen einen großzügigen Balkon, eine gemütliche Loggia oder eine wunderschöne Dach- terrasse. Diese erhalten durch die verbauten Hebeschiebetüren einen sehr komfortablen Zugang und eine Lüftungsmöglich- keit der Wohnzimmer. Die Wohnungen sind weiterhin mit einer dezentralen Lüftung ausgestattet. Selbstverständlich zählen ein Kabelanschluss sowie eine Video-Türsprechanlage zur erweiterten Ausstattung.

Mit der unterirdischen Tiefgarage mit 35 Stellplätzen steht jeder Wohneinheit mindestens ein Parkplatz zur Verfügung. Neben dem Besucherstellplatz im Außenbereich, können auch die Fahr- räder bequem in einem Fahrradhäuschen abgestellt werden, welches sich an der Zenettistraße befindet. Die Paketbox der Wohnanlage bietet ein zusätzliches Maß an Sicherheit und Komfort für die Hausgemeinschaft. In der Wohnanlage befindet sich eine Aufzugsanlage: Mit dieser können alle Wohnungen, das Kellergeschosse samt Tiefgarage bequem erreicht werden

Keller Möbliert Aufzug Gäste-WC Balkon vorhanden Einbauküche Rollladen vorhanden

Energieausweisangaben

A+
A
B
C
D
E
F
G
H
  • Enerigeausweistyp Bedarfsausweis
  • Energiekennwert 59 KWh(m²*a)
  • Energieeffizienzklasse B
  • Energie mit Warmwasser ja
  • Energieausweis erstellt am 22.10.2021
  • Energieausweis gültig bis 22.10.2031
  • Heizungsart Fußbodenheizung
  • Befeuerung / Energieträger Pellet

Grundrisse

Wie können wir Ihnen behilflich sein?

Herzlichen Dank für Ihre Anfrage.

Wir werden diese so schnell wie möglich bearbeiten.

Wie können wir Ihnen behilflich sein?
* Pflichtfeld